




256 W Avenida Palizada, San Clemente, CA 92672
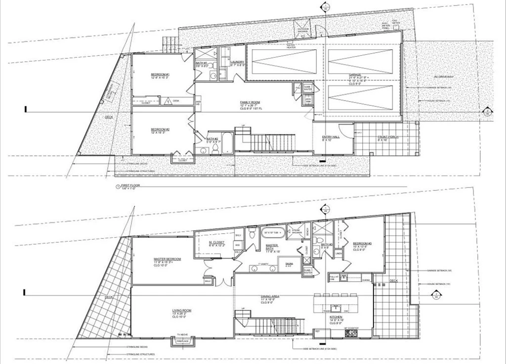
Premier Coastal Development Opportunity Easy walking distance to beach access, Linda Lane Park and popular Avenida Del Mar with loads of restaurants and shopping. Beach access takes you to the San Clemente Beach trail which leads to the San Clemente Pier, restaurants and past many surf breaks! Investors and builders will appreciate the immense value of the previously approved Coastal Commission plans for a 2,807 sq. ft. single-family home (4BR/4BA/3-car garage). Alternatively, explore the potential for a multi-unit build in this high-demand market. This is a rare chance to secure a footprint in a premier coastal market where inventory is scarce and demand remains timeless. Perfect for builders seeking their next flagship project or investors looking for a high-yield coastal asset.
Lot Size
6,534 sqft
Days on Market
0
HOA Fee
N/A
MLS #
OC26068295
Lot Features
Value In Land
Sewer
Public Sewer
Water Source
Public
Park, Street Lights
$0
| Rating | School Name | ||
|---|---|---|---|
| No school data available for this area. | |||
Balanced market
Avg. time on market
This is a Balanced Market. Homes are selling at a moderate pace.
Based on price, location, and features
Topfind Realty, DRE # 02240815, is a licensed real estate broker in California. Topfind Realty pledges to support the Fair Housing Act and adhere to Equal Housing Opportunity laws.
Copyright © 2026 Topfind Realty. All Rights Reserved.