




$575,000
Est. $3,220/mo1205 E D, Ontario, CA 91764
About this home
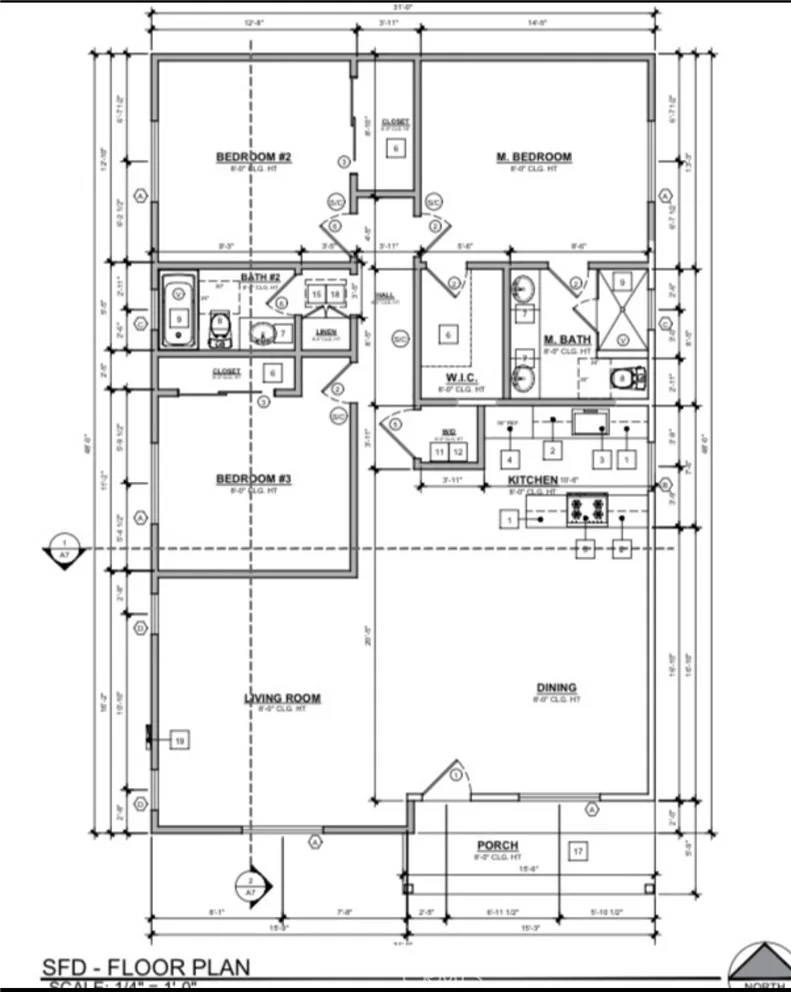
Development opportunity in Ontario with approved plans for a remodel, addition, and new Accessory Dwelling Unit (ADU). The project proposes expansion of the existing single-family residence to approximately 1,463 sq. ft., including a 635 sq. ft. addition and new covered entry. Plans also include conversion of the existing 400 sq. ft. detached two-car garage into a 998 sq. ft. detached ADU featuring 3 bedrooms and 2 bathrooms, along with a small addition and covered entry. The ADU is designed with separate water, electrical, and gas meters, providing flexibility for future occupancy or rental potential. This offering allows a buyer to acquire a property with plans already reviewed through the City process, significantly reducing development timelines.
infoProperty Facts
Bedrooms
3
Bathrooms
1
Square Feet
816
Lot Size
7,500 sqft
Year Built
1941
Property Type
Single Family Residence
Days on Market
2
HOA Fee
N/A
Garage Total
2
MLS #
CV26051851
chairInterior Details
Kitchen & Appliances
Laundry
In Garage
Bed & Bath
Main Level Bedrooms
3
Main Level Bathrooms
1
garageParking
Total Parking Spaces
2
Garage Spaces
2
deckExterior & Lot
Lot & Grounds
Lot Features
Level
Sewer
Public Sewer
Water Source
Public
diversity_3Community & HOA
Association Info
Community Features
Curbs, Street Lights
Mortgage Calculator
$0
Nearby Schools
| Rating | School Name |
|---|---|
9 | GreatSchools High (Demo) public School • ratio 22:1 |
7 | Valley View Elementary (Demo) public School • ratio 18:1 |
6 | Lincoln Middle School (Demo) public School • ratio 20:1 |
NR | St. Mary Example Academy (Demo) private School • ratio 12:1 |
Walkability
Market Insights
Estimated Value
Market Temperature
Balanced market
Avg. time on market
This is a Balanced Market. Homes are selling at a moderate pace.
Similar Homes You Might Like
Based on price, location, and features