




$4,850,000
Est. $27,160/mo308 Yale Road, Menlo Park, CA 94025
About this home
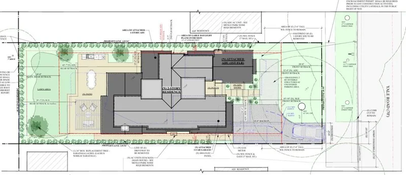
Dont miss your final chance to build your dream home in this truly exceptional location. Approved Vision. Endless Possibility. Nestled on one of the most desirable blocks in Allied Arts, 308 Yale offers a rare opportunity to build your dream home in one of Menlo Parks most coveted neighborhoods. The tree-lined street is surrounded by beautiful newer homes, offering a timeless sense of community and charm. The approved plan, designed by Steve Simpson, one of Silicon Valleys most respected architects, features a clean modern aesthetic and a thoughtfully functional layout ideal for todays lifestyle. Highlights of the approved design include: 5 Beds, 4.5 baths, total 3,718 sq. ft. of living space, including an attached ADU. First floor: one ensuite bedroom plus a private office. Second floor: three ensuite bedrooms. A gourmet kitchen, dining, and family area that flow seamlessly into a deep, private backyard - perfect for entertaining and everyday living. Unmatched convenience close to downtown Menlo Park, Stanford University, and leading tech campuses.
infoProperty Facts
Bedrooms
5
Bathrooms
5
Square Feet
3,718
Lot Size
7,500 sqft
Year Built
2026
Property Type
Single Family Residence
Days on Market
27
HOA Fee
N/A
Garage Total
1
MLS #
ML82031075
chairInterior Details
Climate Control
Cooling
Central Air
Heating
Central
garageParking
Total Parking Spaces
1
Garage Spaces
1
Attached Garage
Yes
deckExterior & Lot
Building & Construction
Roof
Metal
Lot & Grounds
Sewer
Public Sewer
Water Source
Public
Mortgage Calculator
$0
Nearby Schools
| Rating | School Name |
|---|---|
9 | GreatSchools High (Demo) public School • ratio 22:1 |
7 | Valley View Elementary (Demo) public School • ratio 18:1 |
6 | Lincoln Middle School (Demo) public School • ratio 20:1 |
NR | St. Mary Example Academy (Demo) private School • ratio 12:1 |
Walkability
Market Insights
Estimated Value
Market Temperature
Balanced market
Avg. time on market
This is a Balanced Market. Homes are selling at a moderate pace.
Similar Homes You Might Like
Based on price, location, and features