




105 S Marguerita Avenue F, Alhambra, CA 91801
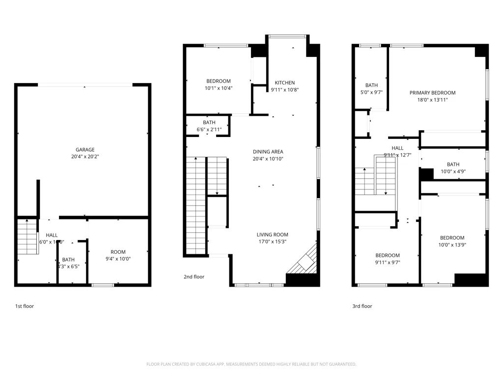
Charming 4-bedroom , 3-bathroom end unit condo in a desire location of North Alhamba city, walk to the theater, market an many local restaurants and shops. Large living room with fire place. neutral tone laminated flooring throughout the entire unit. stone countertops, white cabinets, stainless - steel refrigerator, built in stove, recessed lights. One bedroom down stairs. Large master bedroom with another two bedrooms upstairs. One bonus room, half bath and washer/dryer behind the garage. Fresh new paint throughout the entire unit. Ready for moving in.
Bedrooms
4
Bathrooms
3
Square Feet
1,613
Lot Size
15,000 sqft
Year Built
1985
Property Type
Condominium
Days on Market
6
HOA Fee
$250/mo
Garage Total
2
MLS #
WS26065025
Interior Features
Bedroom On Main Level
Fireplace
Living Room
Appliances
Dryer, Washer
Main Level Bedrooms
1
Main Level Bathrooms
1
Cooling
Central Air
Total Parking Spaces
2
Garage Spaces
2
Attached Garage
Yes
Sewer
Public Sewer
Water Source
Public, Private
Maintenance Grounds, Insurance, Other, Trash, Water
Street Lights
$0
| Rating | School Name | ||
|---|---|---|---|
| No school data available for this area. | |||
Balanced market
Avg. time on market
This is a Balanced Market. Homes are selling at a moderate pace.
Flood Risk
Minimal — not in a FEMA flood zone
Wildfire Risk
Moderate — near wildland-urban interface
Heat Risk
Low — moderate summer temperatures
Earthquake Risk
Southern California seismic zone
Based on price, location, and features
Topfind Realty, DRE # 02240815, is a licensed real estate broker in California. Topfind Realty pledges to support the Fair Housing Act and adhere to Equal Housing Opportunity laws.
Copyright © 2026 Topfind Realty. All Rights Reserved.