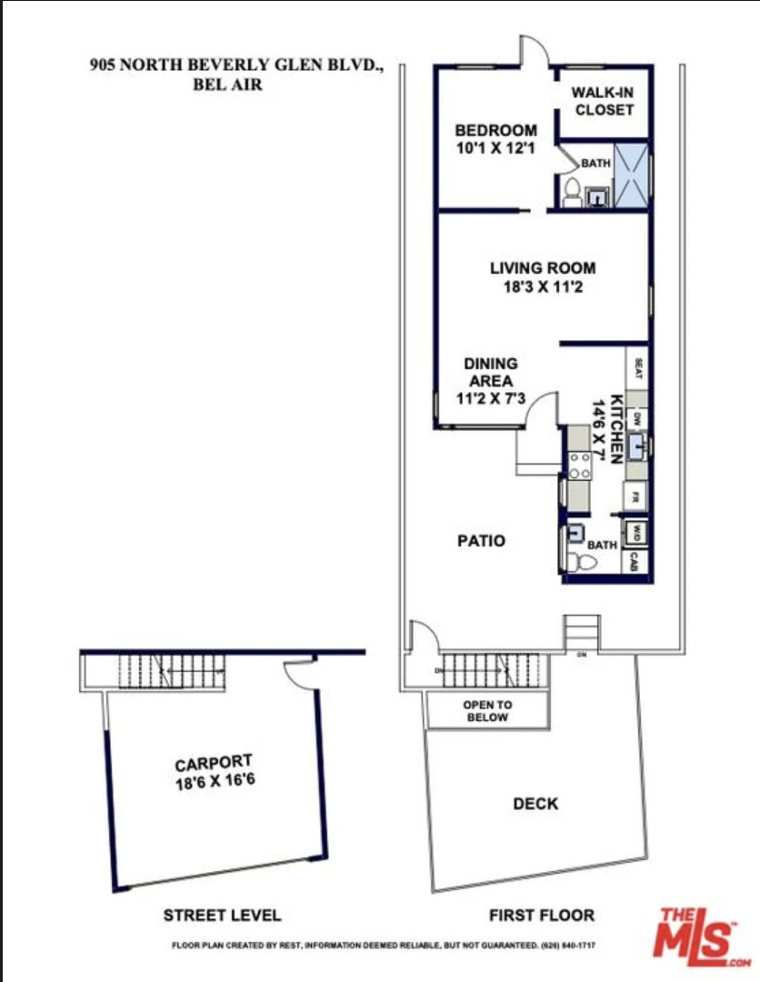
905 N Beverly Glen Boulevard, Los Angeles, CA 90077
Design lovers take note: this 1948 residence by celebrated Mid-Century architect Cliff May was recently taken down to the studs and re-envisioned from the original structure with contemporary updates. Behind a private courtyard, walls of glass frame the interiors and blur the line between indoor and outdoor living. Natural light pours through skylights and oversized windows, highlighting polished concrete floors and the home's open, airy layout. The kitchen is a showcase of modern function and style with marble countertops, custom cabinetry, high-end appliances, and integrated dining. Both bathrooms feature artisan tile and refined fixtures, while the primary suite offers a spa-like bath and direct access to a secluded bistro patio. A generous walk-in closet completes this retreat. Multiple patios and decks extend the living space outdoors and invite you to relax in the sun, entertain guests, or enjoy serene canyon vistas. A mobile vintage orb fireplace adds character and flexibility. A two car garage provides off-street parking along with extra storage space. Fantastic Beverly Glen location close to nature, trails and amenities. Take a stroll up to your local Glen Market or take advantage of your proximity to Westwood and the coveted Glen Centre. A timeless piece of architectural history, beautifully renewed for today's lifestyle. Offered with the option to purchase fully furnished.
Bedrooms
1
Bathrooms
2
Square Feet
736
Lot Size
4,435 sqft
Year Built
1948
Property Type
Single Family Residence
Days on Market
176
HOA Fee
N/A
Garage Total
2
MLS #
25589795
Interior Features
Recessed Lighting, Walk In Closets
Fireplace
Free Standing, Living Room
Appliances
Dishwasher, Disposal, Refrigerator, Dryer, Washer
Laundry
Stacked
Heating
Electric
Patio & Porch
Brick, Concrete, Deck, Open, Patio, Rooftop
Direction Faced
East
| Rating | School Name | ||
|---|---|---|---|
| No school data available for this area. | |||
Based on price, location, and features
Topfind Realty, DRE # 02240815, is a licensed real estate broker in California. Topfind Realty pledges to support the Fair Housing Act and adhere to Equal Housing Opportunity laws.
Copyright © 2026 Topfind Realty. All Rights Reserved.