38220 Chuperosa Lane, Cathedral City, CA 92234
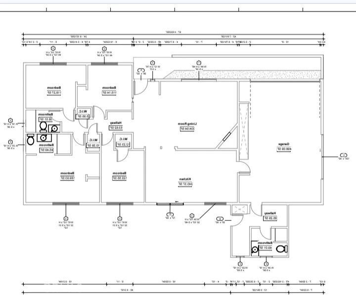
Fabulous views of Rancho Mirage Ritz, quiet area, close to shopping, large private backyard with pool, major asbestos abatement, all Sheetrock removed (permitted), previously permitted garage living quarters will be garage. Pool room with bath and changing area. Price reflects unfinished state. Buyer to finish. Plans submitted to Cathedral City, fees paid and are posted. New tankless water heater. New roof by AL Miller. Major asbestos abatement by PEA. Fascia recently painted a deep navy blue. All new interior water lines. New water line from house to street. 1574.91 sq ft House 682.39 sq ft Other area $116,000 documented upgrades since purchase. See last picture for the Great Room which is part of the new design. All four bedrooms are retained.
Bedrooms
4
Bathrooms
3
Square Feet
2,131
Lot Size
10,890 sqft
Year Built
1965
Property Type
Single Family Residence
Days on Market
43
HOA Fee
N/A
Garage Total
1
MLS #
SW26005007
Interior Features
All Bedrooms Down
Flooring
Concrete
Laundry
Washer Hookup, Electric Dryer Hookup, Laundry Room
Main Level Master
Yes
Patio & Porch
Concrete
Fencing
Wood
Construction
Frame
Foundation
Slab
Roof
Mixed
| Rating | School Name |
|---|---|
| 9 | GreatSchools High (Demo) public |
| 7 | Valley View Elementary (Demo) public |
| 6 | Lincoln Middle School (Demo) public |
| NR | St. Mary Example Academy (Demo) private |
Based on price, location, and features
Topfind Realty, DRE # 02240815, is a licensed real estate broker in California. Topfind Realty pledges to support the Fair Housing Act and adhere to Equal Housing Opportunity laws.
Copyright © 2026 Topfind Realty. All Rights Reserved.