




10529 Corley, Whittier, CA 90604
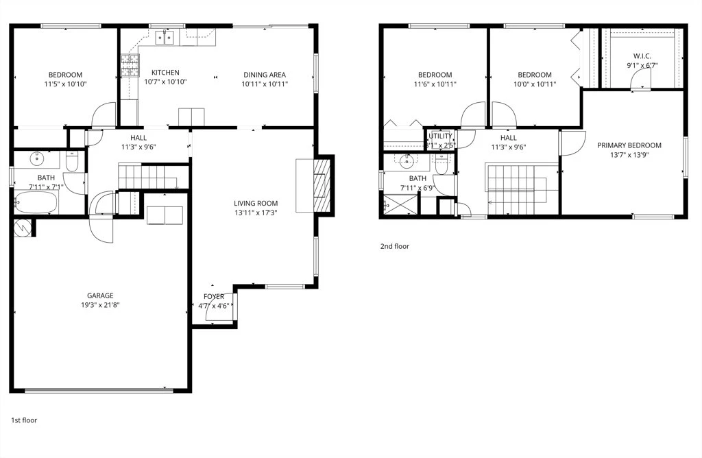
Welcome to this well-maintained and highly versatile home located in one of Whittier’s most desirable neighborhoods. Offering a spacious and functional layout, this residence features four bedrooms and two bathrooms, including a downstairs bedroom with an adjacent bath—ideal for guests, multi-generational living, or a private office setup. The main level offers an open and inviting flow with generous living and dining areas, highlighted by a cozy fireplace in the living room and a dedicated dining area within the kitchen—perfect for both everyday living and entertaining. Upstairs, you’ll find three additional bedrooms along with a full bathroom featuring both a shower and tub. This home has been exceptionally well cared for over the years and features a newer roof and completed termite work, providing added confidence for the next owner. It offers a clean, well-preserved interior with an excellent opportunity to personalize and add value over time. Step outside to a spacious backyard featuring a side patio and a unique enclosed structure—perfect for a home office, studio, or flexible bonus space. Situated in a quiet, established neighborhood, this property combines space, flexibility, and long-term potential. Priced to attract strong interest—don’t miss the opportunity to secure a home with this much upside in a prime Whittier location.
Bedrooms
4
Bathrooms
2
Square Feet
1,616
Lot Size
4,562 sqft
Year Built
1964
Property Type
Single Family Residence
Days on Market
0
HOA Fee
N/A
Garage Total
2
MLS #
DW26065851
Interior Features
Eat In Kitchen, Bedroom On Main Level
Flooring
Carpet, Tile
Fireplace
Living Room
Laundry
In Garage
Main Level Bedrooms
1
Main Level Bathrooms
1
Cooling
Central Air
Heating
Central
Total Parking Spaces
2
Garage Spaces
2
Attached Garage
Yes
Parking Features
Garage Faces Front
Roof
Composition
Lot Features
Back Yard, Front Yard
Sewer
Public Sewer
Water Source
Public
Street Lights, Sidewalks
$0
| Rating | School Name |
|---|---|
9 | GreatSchools High (Demo) public School • ratio 22:1 |
7 | Valley View Elementary (Demo) public School • ratio 18:1 |
6 | Lincoln Middle School (Demo) public School • ratio 20:1 |
NR | St. Mary Example Academy (Demo) private School • ratio 12:1 |
Balanced market
Avg. time on market
This is a Balanced Market. Homes are selling at a moderate pace.
Based on price, location, and features
Topfind Realty, DRE # 02240815, is a licensed real estate broker in California. Topfind Realty pledges to support the Fair Housing Act and adhere to Equal Housing Opportunity laws.
Copyright © 2026 Topfind Realty. All Rights Reserved.