




2201 Scott Peak Pl 49, Unknown, CA 96146
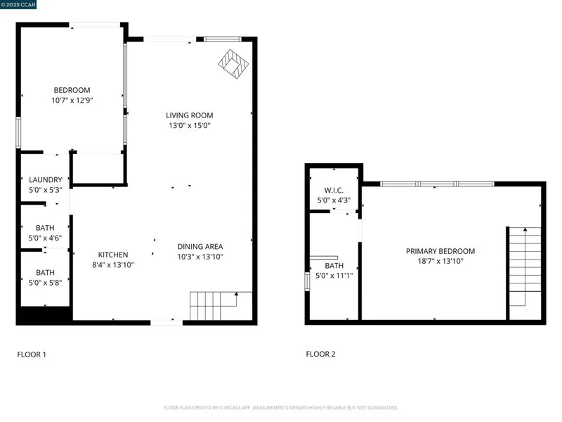
Hate Parking Reservations, Sitting in traffic, Rushing to get to the mountain...ARGH! Then THIS IS FOR YOU! Prime Location! Access to the Mountaineer Shuttle right at your door step — Priced to Sell. Offered at ONLY $550,000, this 2-bedroom, 2-bath condo is an excellent opportunity to own in Alpine Meadows at a compelling price point. Live at the resort, under the stars and in the heart of Mother Nature. The functional floor plan offers flexibility for full-time living, a second home, or a mountain getaway. The property is being sold as-is, and the seller is highly motivated and ready to make a move, creating strong value for a buyer prepared to act quickly. Conveniently located with easy access to world-class skiing, year-round recreation, and the greater Tahoe area, this condo represents a rare opportunity in today’s market. Don’t miss this aggressively priced offering.
Bedrooms
2
Bathrooms
2
Square Feet
1,132
Lot Size
712 sqft
Year Built
1980
Property Type
Single Family Residence
Days on Market
221
HOA Fee
N/A
Garage Total
1
MLS #
41106632
Flooring
Carpet, Tile, Wood
Fireplace
Living Room
Heating
Electric
Total Parking Spaces
1
Garage Spaces
1
Attached Garage
Yes
Parking Features
Garage, Garage Door Opener
Roof
Metal
Lot Features
Back Yard
Sewer
Public Sewer
$0
| Rating | School Name | ||
|---|---|---|---|
| No school data available for this area. | |||
Balanced market
Avg. time on market
This is a Balanced Market. Homes are selling at a moderate pace.
Flood Risk
Minimal — not in a FEMA flood zone
Wildfire Risk
Moderate — near wildland-urban interface
Heat Risk
Low — moderate summer temperatures
Earthquake Risk
Southern California seismic zone
Based on price, location, and features
Topfind Realty, DRE # 02240815, is a licensed real estate broker in California. Topfind Realty pledges to support the Fair Housing Act and adhere to Equal Housing Opportunity laws.
Copyright © 2026 Topfind Realty. All Rights Reserved.