
2606 Paul Minnie Avenue, Santa Cruz, CA 95062
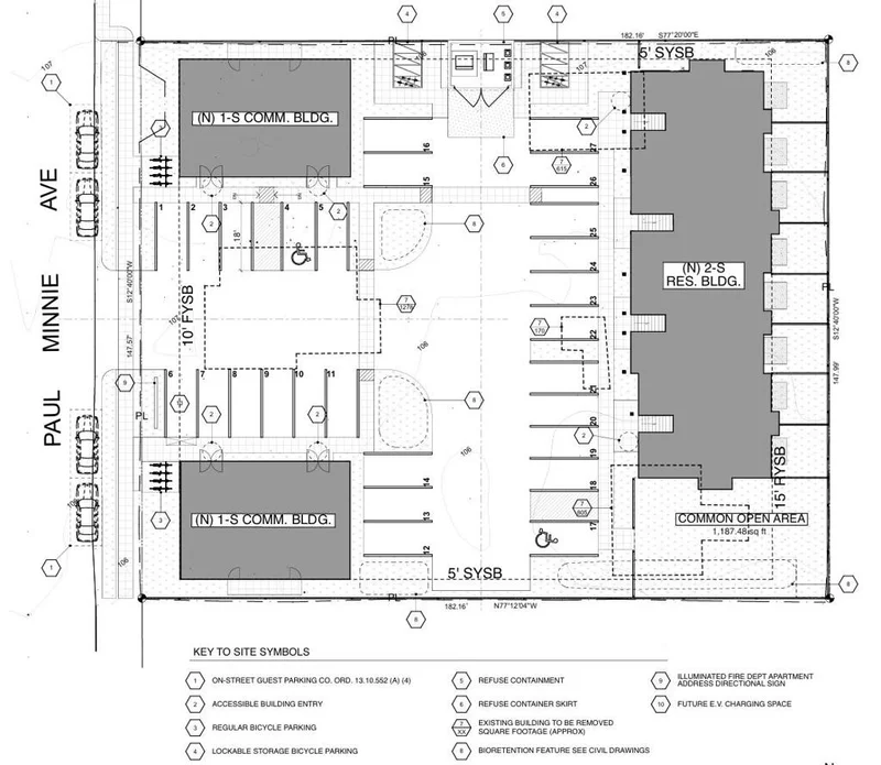
The proposed development site offers a highly promising opportunity for a mixed-use project that integrates modern residential apartments with vibrant commercial spaces. The tentative plan include 15 units apartment and 2 commercial buildings.
Bedrooms
3
Bathrooms
1
Square Feet
1,260
Lot Size
27,269 sqft
Year Built
1909
Property Type
Single Family Residence
Days on Market
97
HOA Fee
N/A
Garage Total
1
MLS #
ML82026158
Heating
Floor Furnace
Total Parking Spaces
1
Garage Spaces
1
Foundation
Concrete Perimeter
Roof
Composition
Sewer
Public Sewer
$0
| Rating | School Name | ||
|---|---|---|---|
| No school data available for this area. | |||
Balanced market
Avg. time on market
This is a Balanced Market. Homes are selling at a moderate pace.
Flood Risk
Minimal — not in a FEMA flood zone
Wildfire Risk
Moderate — near wildland-urban interface
Heat Risk
Low — moderate summer temperatures
Earthquake Risk
Southern California seismic zone
Based on price, location, and features
Topfind Realty, DRE # 02240815, is a licensed real estate broker in California. Topfind Realty pledges to support the Fair Housing Act and adhere to Equal Housing Opportunity laws.
Copyright © 2026 Topfind Realty. All Rights Reserved.