




13028 Vaughn, San Fernando, CA 91340
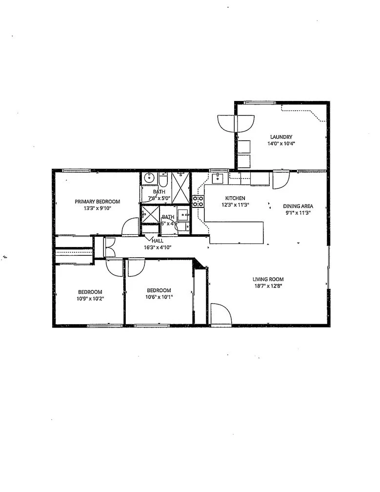
This 3 bedroom home with two 3/4 baths, is a remodeled paradise in the midst of the City, please see 'accompanying photos'. Close to schools, Churches, and Interstate 5, plus 210 and 118 freeways. Travel wherever your heart desires, yet return to this island of Paradise, with a green hedge providing privacy and seclusion for evenings under the stars. Attached and covered carport, accommodates two cars. Within the past 5 years the interior has been tastefully remodeled, with custom Ceilings, and NEW Kitchen & Breakfast Bar, NEW Tile Flooring, NEW Covered Patio & Carport, NEW Central Air & Water Heater plus a NEW Roof. Electrical Service has been upgraded to 200 AMPS. In the back yard there are 9 fruit bearing trees, as well as an 8 foot by 12 foot secure storage shed. With great neighbors, you will be blessed to be the new owner, and financing is currently available for you!
Bedrooms
3
Bathrooms
2
Square Feet
1,075
Lot Size
5,843 sqft
Year Built
1957
Property Type
Single Family Residence
Days on Market
2
HOA Fee
N/A
Garage Total
0
MLS #
AR26074047
Interior Features
Breakfast Bar, Ceiling Fans, Dry Bar, Eat In Kitchen, High Ceilings, Open Floorplan, Solid Surface Counters, Tile Counters, Unfurnished, Unfinished Walls, All Bedrooms Down, Bedroom On Main Level, Main Level Primary, Primary Suite, Utility Room
Flooring
Tile
Accessibility
No Stairs, Accessible Entrance
Appliances
Double Oven, Dishwasher, Free Standing Range, Gas Cooktop, Disposal, Gas Water Heater, Microwave, Refrigerator, Range Hood, Water Heater, Dryer, Washer
Laundry
Washer Hookup, Gas Dryer Hookup, Laundry Room
Main Level Bedrooms
3
Main Level Bathrooms
2
Cooling
Central Air, Electric
Heating
Central, Forced Air, Natural Gas
Total Parking Spaces
4
Carport Spaces
2
Open Parking Spaces
2
Parking Features
Attached Carport, Asphalt, Covered, Driveway, Gated, Paved, One Space
Patio & Porch
Concrete, Covered, Open, Patio
Fencing
Block, Chain Link, Good Condition
Security
Carbon Monoxide Detectors, Smoke Detectors
Construction
Brick Veneer, Drywall, Stucco
Foundation
Concrete Perimeter, Slab
Roof
Asbestos Shingle
Lot Features
Two To Five Units Acre, Back Yard, Front Yard, Garden, Sprinklers In Front, Lawn, Landscaped, Level, Paved, Rectangular Lot, Street Level, Trees, Yard
Sewer
Public Sewer
Water Source
Public
Gutters, Street Lights
$0
| Rating | School Name | ||
|---|---|---|---|
| No school data available for this area. | |||
Balanced market
Avg. time on market
This is a Balanced Market. Homes are selling at a moderate pace.
Based on price, location, and features
Topfind Realty, DRE # 02240815, is a licensed real estate broker in California. Topfind Realty pledges to support the Fair Housing Act and adhere to Equal Housing Opportunity laws.
Copyright © 2026 Topfind Realty. All Rights Reserved.