
515 17 63Rd Street, San Diego, CA 92114
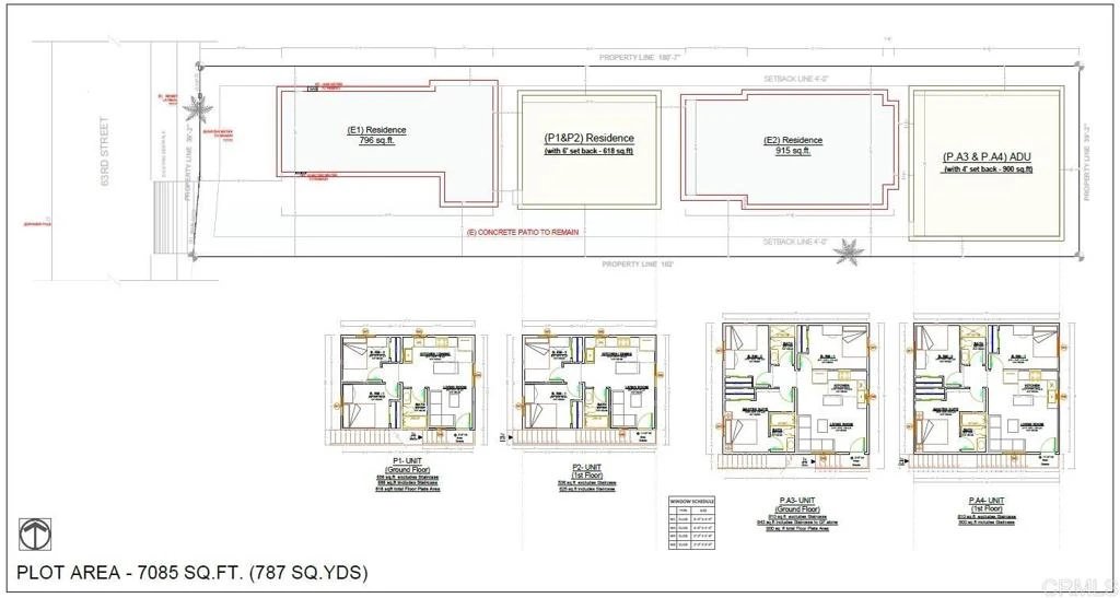
Excellent investment opportunity in an Opportunity Zone! This duplex features two well-sized units: the first unit offers 2 bedrooms, 2 bathrooms, and in-unit laundry across approximately 796 sq ft. The second unit includes 3 bedrooms and 2 bathrooms with approximately 915 sq ft of living space, providing strong rental potential. Situated on a spacious lot, this property offers significant upside for investors and developers. The seller has already designed plans for four additional units, presenting the possibility to expand the property into a larger multi-unit development. Architectural plans for the proposed expansion are attached. Whether you’re looking to live in one unit and rent the other or pursue a value-add development project, this property offers exceptional potential in a rapidly growing area.
Bedrooms
5
Bathrooms
4
Square Feet
1,711
Lot Size
7,085 sqft
Year Built
1933
Property Type
Duplex
Days on Market
0
HOA Fee
N/A
Garage Total
0
MLS #
NDP2602331
Interior Features
All Bedrooms Down
Appliances
Dryer
Laundry
Common Area, Electric Dryer Hookup, Gas Dryer Hookup
Main Level Bedrooms
5
Main Level Bathrooms
4
Cooling
Central Air
Total Parking Spaces
4
Open Parking Spaces
4
Lot Features
Twenty One To Twenty Five Units Acre
Sewer
Public Sewer
Urban
$0
| Rating | School Name |
|---|---|
9 | GreatSchools High (Demo) public School • ratio 22:1 |
7 | Valley View Elementary (Demo) public School • ratio 18:1 |
6 | Lincoln Middle School (Demo) public School • ratio 20:1 |
NR | St. Mary Example Academy (Demo) private School • ratio 12:1 |
Balanced market
Avg. time on market
This is a Balanced Market. Homes are selling at a moderate pace.
Based on price, location, and features
Topfind Realty, DRE # 02240815, is a licensed real estate broker in California. Topfind Realty pledges to support the Fair Housing Act and adhere to Equal Housing Opportunity laws.
Copyright © 2026 Topfind Realty. All Rights Reserved.