




$2,300,000
Est. $12,880/mo0 S 32nd Street, San Diego, CA 92113
About this home
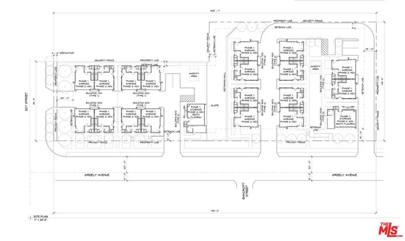
Rare multi-parcel development opportunity in an Opportunity Zone (QOZ) offering potential substantial tax benefits. This offering includes 8 contiguous parcels of land in an area that is nearly fully built out, making opportunities like this increasingly scarce. The sale includes architectural plans for a 41-unit residential project, allowing a buyer to move forward with a clear development vision already in place. Surrounded by established properties, this site sits in an up-and-coming pocket of San Diego benefiting from strong demand for housing and ongoing neighborhood growth. With infrastructure in place and a high density potential, this is an ideal acquisition for a builder or developer seeking scale in a supply-constrained market. A compelling opportunity to develop a sizable residential project in a location where new land offerings are limited positioned for long-term value and rental demand.
infoProperty Facts
Bathrooms
0
Lot Size
47,270 sqft
Days on Market
10
HOA Fee
N/A
MLS #
26650671
chairInterior Details
garageParking
deckExterior & Lot
Lot & Grounds
Sewer
Other
Mortgage Calculator
$0
Nearby Schools
| Rating | School Name |
|---|---|
9 | GreatSchools High (Demo) public School • ratio 22:1 |
7 | Valley View Elementary (Demo) public School • ratio 18:1 |
6 | Lincoln Middle School (Demo) public School • ratio 20:1 |
NR | St. Mary Example Academy (Demo) private School • ratio 12:1 |
Walkability
Market Insights
Estimated Value
Market Temperature
Balanced market
Avg. time on market
This is a Balanced Market. Homes are selling at a moderate pace.
Similar Homes You Might Like
Based on price, location, and features