




730 S Catalina Avenue D, Redondo Beach, CA 90277
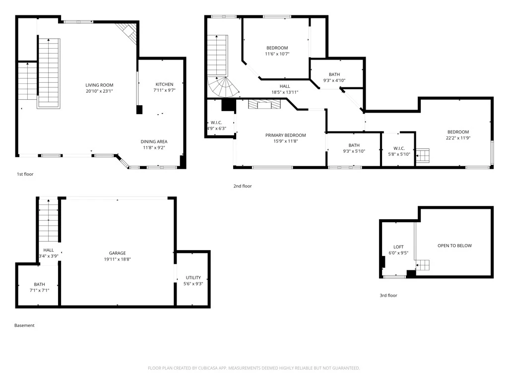
We are proud to present 730 S. Catalina ave, Redondo Beach CA, This modern style townhouse boasts beachfront views from the master bedroom and rooftop . This unit is 1594 sqft with 3 bedrooms and 2 1/2 bathrooms. The spacious floor plans consists of a 2 car garage Laundry room and a bathroom on the first floor and the living room and kitchen on the second floor. Lastly 3 spacious bedrooms and two full bathrooms are on the 3rd floor ensuring maximum privacy if you are entertaining guests. The extraordinary and spacious rooftop is also perfect for entertaining guest or watching the beautiful Redondo Beach sunsets over the ocean. Ideally located near award-winning schools, parks, shopping, dining, and seconds from the beach, this exceptional home offers a lifestyle defined by comfort, space, and coastal living. Whether relaxing at home or experiencing the vibrant South Bay surroundings, this residence captures the best of Redondo Beach. Refreshed, refined, and ready for you.
Bedrooms
3
Bathrooms
3
Square Feet
1,594
Lot Size
21,248 sqft
Year Built
1988
Property Type
Condominium
Days on Market
1
HOA Fee
$400/mo
MLS #
26671743
Flooring
Wood
Fireplace
Living Room
Appliances
Dishwasher, Disposal, Microwave, Refrigerator, Dryer, Washer
Laundry
In Garage
Cooling
Central Air
Heating
Central
Total Parking Spaces
2
Parking Features
Covered
Security
Carbon Monoxide Detectors, Smoke Detectors
$0
| Rating | School Name | ||
|---|---|---|---|
| No school data available for this area. | |||
Balanced market
Avg. time on market
This is a Balanced Market. Homes are selling at a moderate pace.
Based on price, location, and features
Topfind Realty, DRE # 02240815, is a licensed real estate broker in California. Topfind Realty pledges to support the Fair Housing Act and adhere to Equal Housing Opportunity laws.
Copyright © 2026 Topfind Realty. All Rights Reserved.