




$249,000
Est. $1,394/mo00 El Camino Dr, Palmdale, CA 93551
About this home
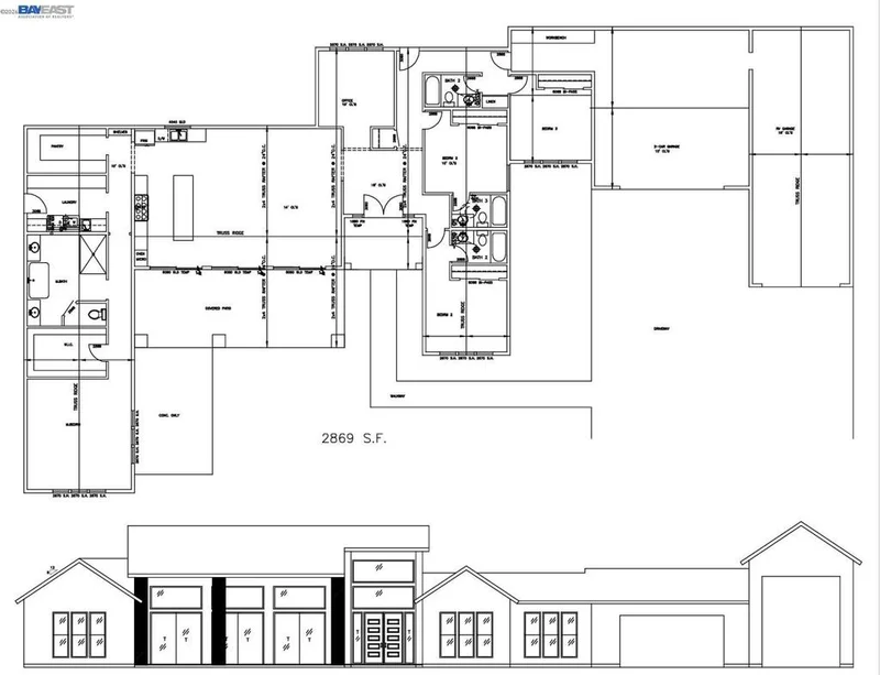
Panoramic View Lot – 166 ft Frontage – Utilities on Site – Lake Views Exceptional opportunity to build your custom dream home in the beautiful Antelope Valley area of unincorporated Los Angeles County. This property offers approximately 166 feet of street frontage, is located on a paved road, and features mostly level terrain with a very light upslope, making it an excellent site for development's parcel offers panoramic views from multiple areas of the property, including views toward Palmdale Lake, creating a truly scenic setting. The lot is generally fenced and provides a sense of privacy with no direct neighbors behind the property. Utilities are available, with a power pole already located on the property, and there is an existing water well on site (purchased as-is, no certificate available). Preliminary architectural plans have already been prepared and paid for a ~2,800+ sq ft custom home with an attached two-car garage. The design was thoughtfully created so that all bedrooms take advantage of the lake views. These plans are preliminary and would need county approval, but a buyer may choose to continue with the existing plans and customize them or design their own project. This versatile property offers multiple potential uses, including custom residential construction
infoProperty Facts
Lot Size
70,664 sqft
Days on Market
4
HOA Fee
N/A
MLS #
41126619
chairInterior Details
garageParking
deckExterior & Lot
Lot & Grounds
Lot Features
Cul De Sac, Horse Property, Sloped Up
Water Source
Well
Mortgage Calculator
$0
Nearby Schools
| Rating | School Name |
|---|---|
9 | GreatSchools High (Demo) public School • ratio 22:1 |
7 | Valley View Elementary (Demo) public School • ratio 18:1 |
6 | Lincoln Middle School (Demo) public School • ratio 20:1 |
NR | St. Mary Example Academy (Demo) private School • ratio 12:1 |
Walkability
Market Insights
Estimated Value
Market Temperature
Balanced market
Avg. time on market
This is a Balanced Market. Homes are selling at a moderate pace.
Similar Homes You Might Like
Based on price, location, and features