




689 Bienveneda Avenue, Pacific Palisades, CA 90272
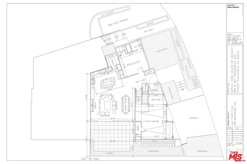
A rare opportunity to build a 3,445 SF modern townhome in Pacific Palisades. The property includes architectural plans by Kemal Ramezani, AIA, with potential for the seller to obtain final plan approval (buyer to verify). An existing caisson foundation is already in place, which may provide significant cost and time savings. Soil reports and structural engineer documentation supporting the reuse of the foundation will be provided. This is one of only two units with no HOA, offering flexibility and fewer ownership restrictions. The proposed design features a two-story layout with 4 bedrooms and 4.5 bathrooms. The first floor includes a living room with a fireplace, dining area, kitchen, powder room, and an office or guest bedroom with an en-suite bath and a walk-in closet. The second floor includes three bedrooms, including a primary suite, plus a den area. All bedrooms are designed with en-suite bathrooms, walk-in closets, and private balconies. The property includes both front and side yard space. The south-facing side yard is designed with a trellis and outdoor heating elements to enhance usability. Located near Palisades Village, beaches, hiking trails, and local amenities.
Bathrooms
0
Lot Size
4,288 sqft
Days on Market
0
HOA Fee
N/A
MLS #
26669281
$0
| Rating | School Name |
|---|---|
9 | GreatSchools High (Demo) public School • ratio 22:1 |
7 | Valley View Elementary (Demo) public School • ratio 18:1 |
6 | Lincoln Middle School (Demo) public School • ratio 20:1 |
NR | St. Mary Example Academy (Demo) private School • ratio 12:1 |
Balanced market
Avg. time on market
This is a Balanced Market. Homes are selling at a moderate pace.
Based on price, location, and features
Topfind Realty, DRE # 02240815, is a licensed real estate broker in California. Topfind Realty pledges to support the Fair Housing Act and adhere to Equal Housing Opportunity laws.
Copyright © 2026 Topfind Realty. All Rights Reserved.