




$268,000
Est. $1,501/mo0 Ruthland Rd, Oakland, CA 94611
About this home
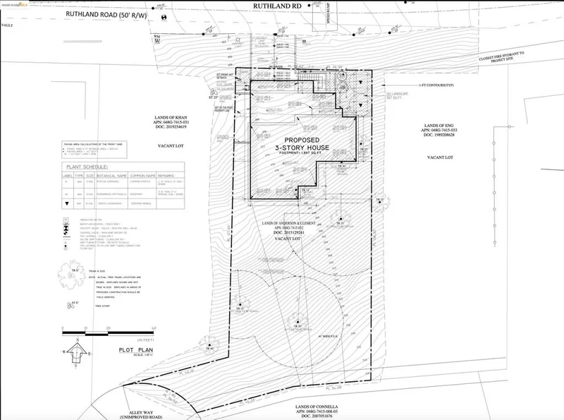
Prime opportunity to build in Oakland’s desirable Montclair neighborhood (94611). This 9,450 sq ft vacant lot comes with approved planning (PLN21079) for a three-story, 2,777 sq ft single-family residence featuring a two-car garage and an elevator. The approved design provides modern hillside living with expansive space and functionality, saving months of planning and review time. The parcel is zoned RH-4 with S-14 and S-9 overlays, offering potential for customization or future additions. The lot is gently sloped with utilities available at the street, located in a low liquefaction risk area outside of any fault, flood, or wildfire zones. A rare shovel-ready opportunity in the Montclair hills, just minutes from Montclair Village, Highway 13, and top-rated schools. Perfect for developers, investors, or an owner-builder ready to bring an approved project to life.
infoProperty Facts
Lot Size
9,450 sqft
Days on Market
101
HOA Fee
N/A
MLS #
41117159
chairInterior Details
garageParking
deckExterior & Lot
Lot & Grounds
Lot Features
Steep Slope, Sloped Up
Mortgage Calculator
$0
Nearby Schools
| Rating | School Name |
|---|---|
9 | GreatSchools High (Demo) public School • ratio 22:1 |
7 | Valley View Elementary (Demo) public School • ratio 18:1 |
6 | Lincoln Middle School (Demo) public School • ratio 20:1 |
NR | St. Mary Example Academy (Demo) private School • ratio 12:1 |
Walkability
Market Insights
Estimated Value
Market Temperature
Balanced market
Avg. time on market
This is a Balanced Market. Homes are selling at a moderate pace.
Similar Homes You Might Like
Based on price, location, and features