




$1,299,000
Est. $7,274/mo12801 Barbara Ann Street, North Hollywood, CA 91605
About this home
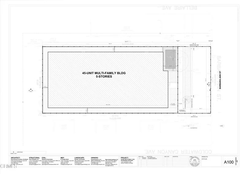
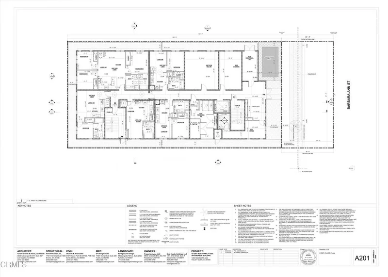
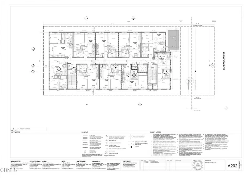
12801 Barbara Ann St, Valley Glen, CA 91605New Affordable Housing Development Opportunity - To be sold with RTI PlansShovel-ready project in Valley Glen featuring 45 units:43 one-bedrooms1 studio1 three-bedroom replacement unitRTI plans and covenant available upon request. Site also offers potential for two future ADUs.A rare chance to acquire a fully entitled, ready-to-build affordable housing development in a strong rental market.
infoProperty Facts
Bathrooms
0
Lot Size
9,481 sqft
Days on Market
0
HOA Fee
N/A
MLS #
P1-25348
chairInterior Details
garageParking
deckExterior & Lot
Lot & Grounds
Lot Features
Sprinklers None
Sewer
Public Sewer
Water Source
Public
diversity_3Community & HOA
Association Info
Community Features
Curbs
Mortgage Calculator
$0
Nearby Schools
| Rating | School Name |
|---|---|
9 | GreatSchools High (Demo) public School • ratio 22:1 |
7 | Valley View Elementary (Demo) public School • ratio 18:1 |
6 | Lincoln Middle School (Demo) public School • ratio 20:1 |
NR | St. Mary Example Academy (Demo) private School • ratio 12:1 |
Walkability
Market Insights
Estimated Value
Market Temperature
Balanced market
Avg. time on market
This is a Balanced Market. Homes are selling at a moderate pace.
Similar Homes You Might Like
Based on price, location, and features