




0 Webster-Val View, Moreno Valley, CA 92553
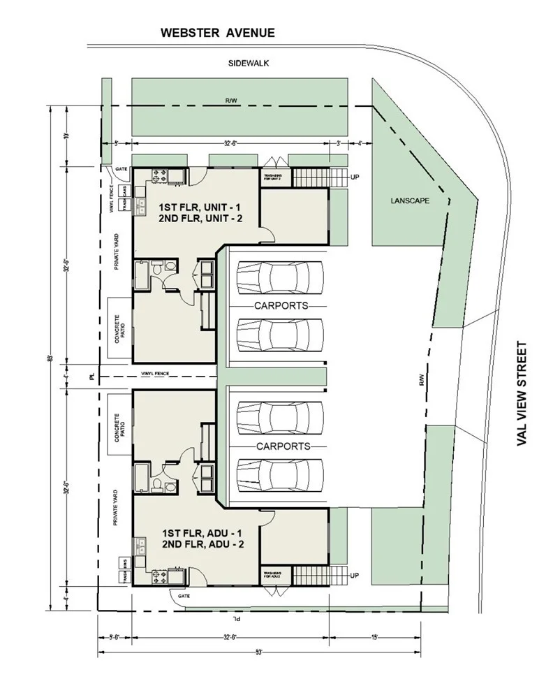
Zoning is 15 units per acre. Seller has preliminary plans for 4 units (2 duplexes). Seller can help buyer with obtaining approvals from city of Moreno Valley.
Lot Size
4,356 sqft
Days on Market
1
HOA Fee
N/A
MLS #
TR26012063
Lot Features
Two To Five Units Acre, Corner Lot, Street Level
Water Source
Public
Street Lights, Sidewalks
$0
| Rating | School Name | ||
|---|---|---|---|
| No school data available for this area. | |||
Balanced market
Avg. time on market
This is a Balanced Market. Homes are selling at a moderate pace.
Flood Risk
Minimal — not in a FEMA flood zone
Wildfire Risk
Moderate — near wildland-urban interface
Heat Risk
Low — moderate summer temperatures
Earthquake Risk
Southern California seismic zone
Based on price, location, and features
Topfind Realty, DRE # 02240815, is a licensed real estate broker in California. Topfind Realty pledges to support the Fair Housing Act and adhere to Equal Housing Opportunity laws.
Copyright © 2026 Topfind Realty. All Rights Reserved.