




$419,000
Est. $2,346/mo5840 Evergreen Lane, Mariposa, CA 95338
About this home
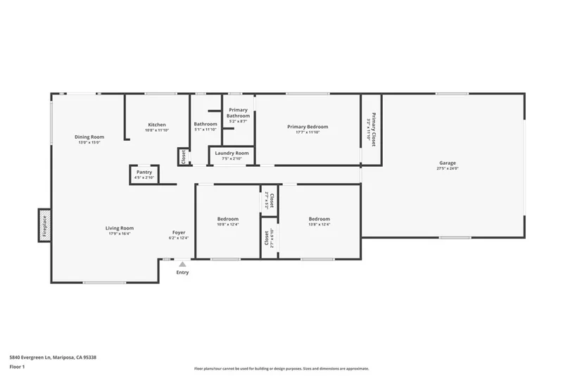
Step into your custom mountain home on 1.5± acres featuring gentle to rolling terrain and sweeping views of the Sierra Nevada, dotted with pine and oak trees. Located on a paved corner lot in the desirable Lushmeadows Mountain Estates. This 3-bedroom, 2-bath, 1,546 sq ft home offers knotty pine ceilings throughout, hardwood floors, and a wood-burning fireplace insert in the living room. The dining room opens to an outdoor patio deck through French doors—perfect for indoor-outdoor living. The custom kitchen includes handcrafted cabinetry, gas cooktop and oven, dishwasher, microwave, pantry, and a large window that fills the space with natural light. The guest bathroom features a spacious walk-in shower, ceramic tile flooring, and custom cabinetry with ample storage. Both guest bedrooms offer hardwood flooring and large windows. The primary suite features hardwood floors, a walk-in closet, and peaceful southern views where deer are often seen. The primary bath showcases wood siding and a large walk-in shower. Additional features include a metal roof, 2-car attached garage, 3-car detached garage/workshop with garage door opener, workshed, and paved driveway. As part of Lushmeadows Mountain Estates, enjoy access to two private lakes (Dawn & Mallard), clubhouse, and campground, with opportunities for fishing, kayaking, hiking, and enjoying the serenity of mountain living. Ideally located approximately 40 minutes from Yosemite National Park, Bass Lake, Lake McClure, and Lake Don Pedro. Perfect as a full-time residence, vacation retreat, or work-from-natures escape. Schedule your home tour today!
infoProperty Facts
Bedrooms
3
Bathrooms
2
Square Feet
1,560
Lot Size
67,953.6 sqft
Year Built
1979
Property Type
Single Family Residence
Days on Market
1
HOA Fee
$200/mo
Garage Total
5
MLS #
MP26037024
chairInterior Details
General Interior
Interior Features
Ceiling Fans, Separate Formal Dining Room, Granite Counters, Pantry, See Remarks, Workshop
Flooring
See Remarks, Wood
Fireplace
Insert, Living Room, See Remarks, Wood Burning, Wood Burning Stove
Kitchen & Appliances
Appliances
Dishwasher, Disposal, Microwave, Propane Cooktop, Propane Oven, Water Heater
Laundry
Inside
Bed & Bath
Main Level Bedrooms
3
Main Level Bathrooms
2
Climate Control
Cooling
Central Air
Heating
Fireplaces, See Remarks, Wood
garageParking
Total Parking Spaces
5
Garage Spaces
5
Attached Garage
Yes
Parking Features
Asphalt, Door Multi, Direct Access, Door Single, Garage, Paved, Rv Potential, See Remarks
deckExterior & Lot
Building & Construction
Patio & Porch
Deck, Front Porch, See Remarks, Wood
Security
Smoke Detectors
Construction
Wood Siding
Foundation
Concrete Perimeter
Roof
Metal
Lot & Grounds
Lot Features
Agricultural, Corner Lot, Rolling Slope, Rocks, Trees
Sewer
Septic Tank
Water Source
Well
diversity_3Community & HOA
Association Info
HOA Amenities
Clubhouse
Community Features
Biking, Fishing, Gutters, Hiking, Lake, Mountainous, Rural
Mortgage Calculator
$0
Nearby Schools
| Rating | School Name |
|---|---|
9 | GreatSchools High (Demo) public School • ratio 22:1 |
7 | Valley View Elementary (Demo) public School • ratio 18:1 |
6 | Lincoln Middle School (Demo) public School • ratio 20:1 |
NR | St. Mary Example Academy (Demo) private School • ratio 12:1 |
Walkability
Market Insights
Estimated Value
Market Temperature
Balanced market
Avg. time on market
This is a Balanced Market. Homes are selling at a moderate pace.
Similar Homes You Might Like
Based on price, location, and features