




26882 Road 400, Madera, CA 93636
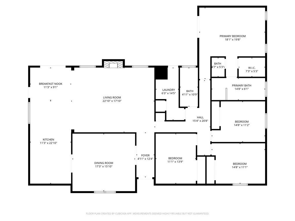
Welcome to your private foothill retreat where modern luxury meets wide-open space. Situated on 23.12 acres in Madera, this fully remodeled 4-bedroom, 2-bath home offers 2,524 sq ft of thoughtfully designed living with breathtaking scenery and unmatched privacy. Step inside to an open-concept floor plan filled with natural light, enhanced by brand-new windows, high ceilings, and a stunning exposed beam that anchors the main living and game room spaces. The living room features a cozy gas fireplace, creating the perfect blend of comfort and style. The chef's kitchen is a true showstopper complete with quartz counter tops, modern tile back-splash, farmhouse sink, stainless steel appliances, a six-burner gas range, and double ovens designed for both everyday living and entertaining at the highest level. Luxury vinyl plank flooring flows throughout the home, complemented by fresh interior and exterior paint, updated lighting, ceiling fans, and modern finishes at every turn. The spacious primary suite offers a peaceful escape with large walk-in closets and a spa-like bathroom featuring dual vanities, a soaking tub with scenic views, and a modern walk-in shower with a waterfall shower head. Additional highlights include a versatile game room with two wine refrigerators, beautifully updated bathrooms, an indoor laundry room, and sliding glass doors that seamlessly connect indoor and outdoor living. Step outside and experience true country living featuring newly refreshed landscaping, covered patios, a custom wood pergola, fenced grassy areas, mature trees, and what appears to be a tranquil pond setting. The property also features a powered barn/shop, two-car garage, ample parking, and dedicated RV parking. Equipped with owned solar, private well, and propane, this property offers efficiency and independence without sacrificing luxury. If you're looking for space, style, and serenity this is it.
Bedrooms
4
Bathrooms
2
Square Feet
2,524
Lot Size
1,007,107 sqft
Year Built
2004
Property Type
Single Family Residence
Days on Market
1
HOA Fee
N/A
Garage Total
2
MLS #
FR26065243
Interior Features
Beamed Ceilings, Breakfast Bar, Breakfast Area, High Ceilings, Pantry, Quartz Counters, Bedroom On Main Level, Main Level Primary
Flooring
See Remarks, Vinyl
Fireplace
Gas, Living Room
Appliances
Dishwasher, Disposal, Gas Range, Microwave
Laundry
Inside
Main Level Bedrooms
4
Main Level Bathrooms
2
Cooling
Central Air
Heating
Central, Fireplaces
Total Parking Spaces
2
Garage Spaces
2
Attached Garage
Yes
Parking Features
Garage, Rv Potential
Patio & Porch
Concrete, Covered, Deck, Patio
Fencing
Wood
Construction
Stucco
Foundation
Slab
Roof
Composition
Lot Features
Twenty One To Twenty Five Units Acre, Front Yard, Lawn, Landscaped
Sewer
Private Sewer
Water Source
Private, Well
Foothills
$0
| Rating | School Name | ||
|---|---|---|---|
| No school data available for this area. | |||
Balanced market
Avg. time on market
This is a Balanced Market. Homes are selling at a moderate pace.
Flood Risk
Minimal — not in a FEMA flood zone
Wildfire Risk
Moderate — near wildland-urban interface
Heat Risk
Low — moderate summer temperatures
Earthquake Risk
Southern California seismic zone
Based on price, location, and features
Topfind Realty, DRE # 02240815, is a licensed real estate broker in California. Topfind Realty pledges to support the Fair Housing Act and adhere to Equal Housing Opportunity laws.
Copyright © 2026 Topfind Realty. All Rights Reserved.