




500 Molino Street 214, Los Angeles, CA 90013
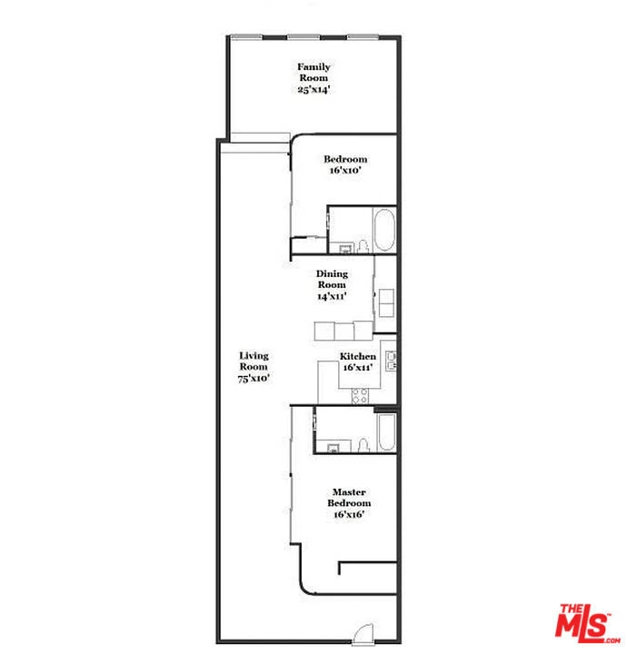
Welcome to the Molino St. Lofts, a 1920s warehouse reimagined for modern life in the heart of Downtown LA's vibrant Arts District. Nestled within the converted industrial space, this impeccably designed Live/Work loft combines the raw charm of a NYC-style loft with contemporary luxury, boasting a fusion of artistic flair and modern amenities. Designed for both living and working, this loft provides ample space for creativity and productivity, with designated areas for lounging, dining, and working from home. Upon entering, you're greeted by the original hardwood floors that exude character and warmth, leading you into an expansive living area adorned with stunning brick walls, providing a captivating backdrop for showcasing artwork and creating a dynamic atmosphere. The kitchen and two baths have been thoughtfully remodeled and expanded by the owner. The kitchen is a culinary delight, featuring sleek cabinetry, premium appliances, and ample counter space, perfect for entertaining guests or whipping up gourmet meals. This loft offers a versatile layout, with two separate bedrooms delineated by modern glass sliding doors for privacy. The master suite has a huge skylight that floods the space with natural light and boasts a spacious walk-in closet, providing ample storage for your wardrobe essentials. Both bathrooms have been elegantly appointed, offering a spa-like retreat with modern fixtures. Additional features include a new HVAC system, recessed lighting, in unit washer & dryer, and 1 rooftop parking space is included. Residents of this exclusive building enjoy access to a range of amenities, including a BBQ station, gym, and dual rooftop terraces featuring panoramic views of the Los Angeles skyline. Living here places you at the epicenter of the Arts District's cultural scene, surrounded by culinary landmarks like Bestia and Bavel, as well as creative hubs like Hauser & Wirth and ROW DTLA. This space transcends the traditional loft, it is a sophisticated architectural landmark that functions perfectly as both a high-end residence and a professional creative space. Experience the best of urban living in one of the largest designed lofts in all of DTLA.
Bedrooms
2
Bathrooms
2
Square Feet
2,420
Lot Size
83,084 sqft
Year Built
1923
Property Type
Condominium
Days on Market
54
HOA Fee
$819/mo
MLS #
26642725
Interior Features
Walk In Closets
Flooring
Wood
Appliances
Dishwasher, Disposal, Microwave, Refrigerator, Dryer, Washer
Cooling
Central Air
Heating
Central
Total Parking Spaces
1
Open Parking Spaces
1
Attached Garage
Yes
Parking Features
Assigned, Controlled Entrance, Community Structure
Security
Carbon Monoxide Detectors, Fire Detection System, Fire Sprinkler System, Gated Community, Key Card Entry, Smoke Detectors
Controlled Access, Pet Restrictions
Gated
$0
| Rating | School Name | ||
|---|---|---|---|
| No school data available for this area. | |||
Balanced market
Avg. time on market
This is a Balanced Market. Homes are selling at a moderate pace.
Based on price, location, and features
Topfind Realty, DRE # 02240815, is a licensed real estate broker in California. Topfind Realty pledges to support the Fair Housing Act and adhere to Equal Housing Opportunity laws.
Copyright © 2026 Topfind Realty. All Rights Reserved.