257 S Avenue 54 1/4, Los Angeles, CA 90042
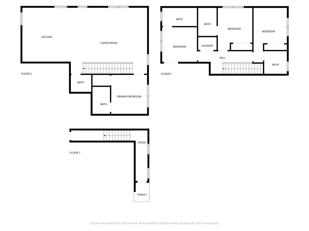
Brand New Luxury Townhome in the heart of Highland Park! Welcome to 257 1/4 Avenue 54 a stunning tri-level residence offering 4 bedrooms and 4.5 bathrooms with spacious, light-filled interiors and high-end finishes throughout. Upon entry you'll head straight into the main living level where you’ll find an expansive great room designed for modern living. The open-concept layout seamlessly connects the living and dining areas to a beautifully appointed wraparound kitchen featuring custom white oak cabinetry, quartz countertops, stainless steel appliances, and a large center island perfect for entertaining. This level also includes a convenient powder room and a private 1-bedroom, 1-bathroom en-suite ideal for guests, a home office, or flexible living space. The upper level offers three generously sized bedrooms, each with its own en-suite bathroom for ultimate privacy and comfort, along with a dedicated laundry area with side-by-side washer and dryer. Throughout the home, enjoy wide-plank white oak flooring, designer tile finishes, custom iron railings, recessed lighting, and abundant natural light. Additional features include central heating and A/C, solar panels for huge savings on energy bills, EV charger readiness, one dedicated garage parking space, and secure entry. Ideally situated in one of Northeast LA’s most sought-after neighborhoods, you’re just moments from York Boulevard and Figueroa Street’s vibrant dining and retail scene, including Highland Park Bowl, Civil Coffee, Café de Leche, and Hippo. With close proximity to the Metro Gold Line, commuting to Downtown LA or Pasadena is effortless. A rare opportunity to own a thoughtfully designed, move-in-ready home in a prime Highland Park location.
The open-concept layout is designed for both grand entertaining and comfortable daily living. Residents enjoy access to premium amenities.
Credit Score
Minimum 700+ FICO score required.
Income Requirement
3x monthly rent in gross income.
Security Deposit
Equal to 1.5 months rent.
Employment
2 years consistent work history.
Relative pricing for luxury rentals in this area
This property is priced competitively within the top 25% of luxury rentals in this area.
| Rating | School Name | ||
|---|---|---|---|
| No school data available for this area. | |||
Marcus Thorne
Property Manager
Topfind Realty, DRE # 02240815, is a licensed real estate broker in California. Topfind Realty pledges to support the Fair Housing Act and adhere to Equal Housing Opportunity laws.
Copyright © 2026 Topfind Realty. All Rights Reserved.