




12934 Ocaso Avenue, La Mirada, CA 90638
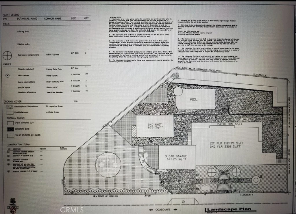
This high-end La Mirada vacant lot offers two possible excellent development opportunities: • Option 1: Split the lot and build two separate homes—ideal for builders and developers. • Option 2: Use the existing approved architectural plans and benefit from significant site preparation already completed, allowing you to begin construction sooner. Plans include a two-story, 4,061 sq. ft. home with an ADU of approximately 635 sq. ft. Key completed improvements and investments: • Sewer connection rights (paid by seller) • 1-inch water meter installed • School fees paid • Driveway curb cut completed • Landscape and grading plans approved • Soil and engineering reports available • 400 linear feet of engineered retaining walls constructed (3 to 9 feet high, with structural footing and shear key) All documentation related to site preparation and entitlements can be made available upon request. These substantial investments reduce both costs and development time for any builder or developer. This is a must-see opportunity in a sought-after neighborhood
Lot Size
17,000 sqft
Days on Market
0
HOA Fee
N/A
MLS #
IV26064290
Fencing
Average Condition, Wood
Lot Features
Zero To One Unit Acre, Irregular Lot
Curbs
$0
| Rating | School Name | ||
|---|---|---|---|
| No school data available for this area. | |||
Balanced market
Avg. time on market
This is a Balanced Market. Homes are selling at a moderate pace.
Based on price, location, and features
Topfind Realty, DRE # 02240815, is a licensed real estate broker in California. Topfind Realty pledges to support the Fair Housing Act and adhere to Equal Housing Opportunity laws.
Copyright © 2026 Topfind Realty. All Rights Reserved.