




$115,000
Est. $644/mo14613 Robinson Avenue, Clearlake, CA 95422
About this home
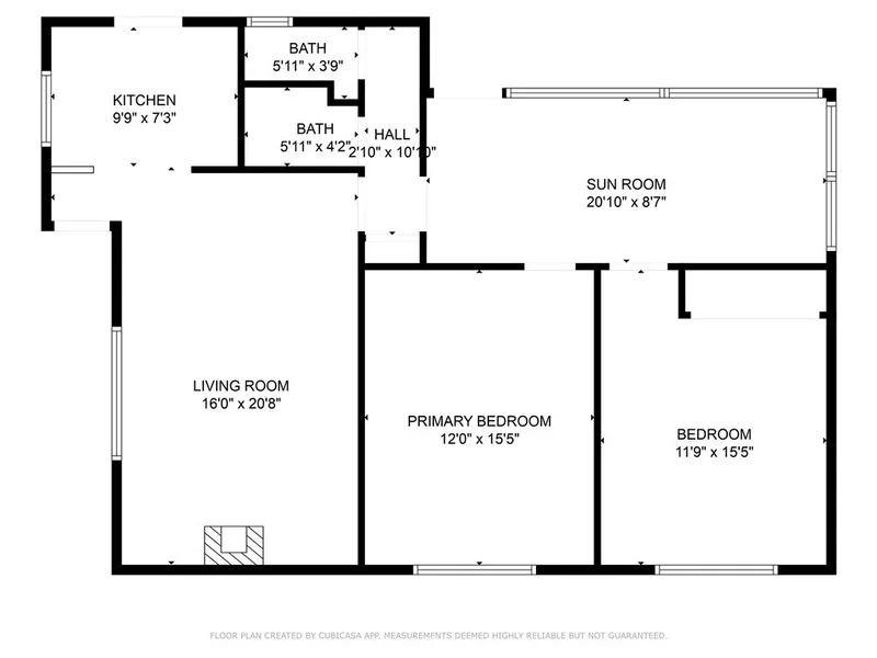
Looking for a project to invest in ? Here you go. Priced well. This 2 bedroom 1 bath with nice size screened in room has so much potential. Home sits on nice level flat lot . Back yard has small wood shed and on side of home has metal shed. Nice patio in front. Home is close to lake for fishing and enjoyment.
infoProperty Facts
Bedrooms
2
Bathrooms
1
Square Feet
904
Lot Size
4,792 sqft
Year Built
1954
Property Type
Single Family Residence
Days on Market
185
HOA Fee
N/A
MLS #
LC25192953
chairInterior Details
General Interior
Interior Features
Bedroom On Main Level
Fireplace
Living Room
Bed & Bath
Main Level Bedrooms
2
Main Level Bathrooms
1
Climate Control
Cooling
Wall Window Units
garageParking
deckExterior & Lot
Building & Construction
Patio & Porch
Porch
Lot & Grounds
Lot Features
Zero To One Unit Acre, Level
Sewer
Public Sewer
Water Source
Public
diversity_3Community & HOA
Association Info
Community Features
Fishing
Mortgage Calculator
$0
Nearby Schools
| Rating | School Name |
|---|---|
9 | GreatSchools High (Demo) public School • ratio 22:1 |
7 | Valley View Elementary (Demo) public School • ratio 18:1 |
6 | Lincoln Middle School (Demo) public School • ratio 20:1 |
NR | St. Mary Example Academy (Demo) private School • ratio 12:1 |
Walkability
Market Insights
Estimated Value
Market Temperature
Balanced market
Avg. time on market
This is a Balanced Market. Homes are selling at a moderate pace.
Similar Homes You Might Like
Based on price, location, and features