




67687 Duchess Road 101, Cathedral City, CA 92234
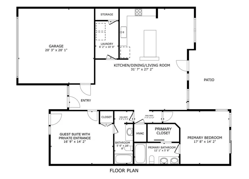
This Beautifully maintained single-story end-unit condominium with 2 Bedrooms and 2 Bathrooms features direct access to its own private 2-car attached Garage. The warm, sophisticated interior features an open-concept Great Room, Dining Area and Kitchen with no partition walls. The Custom Window Coverings with Up-Down Shades provide abundant natural light while maintaining privacy. The Spacious Kitchen, with Granite Countertops and a large Breakfast Bar are adjacent to the Dining Area, which is great for entertaining. The South-facing Patio with mountain glimpses and a scenic desert walkway leading to the community's large pool and spa are a plus. The Primary Suite with Desert Landscaping views similar to those from the Patio, includes an ensuite bathroom with access to the spacious Primary Bedroom Closet. The Second Bedroom Suite features direct access to the Guest/Second Bath and its own private entrance which is ideal for guests. The large Laundry Room with side-by-side Washer and Dryer includes ample storage space as well. And again, the attached 2-Car Garage is ideal. This lovely Simplex Condominium Residence, with no one living above, is located adjacent to the Cimarron Country Club/Golf Course that features two championship courses, a Pro Shop, Dining with Breakfast and Lunch options plus its 'Happy Hour' from 3pm to 6pm daily. Lantana at Cimarron is located at the end of 30th Avenue, west of Landau Road in Cathedral City, CA. It shares the same gated entry as the Worldmark Time-Share Residences.
Bedrooms
2
Bathrooms
2
Square Feet
1,478
Lot Size
1,500 sqft
Year Built
2008
Property Type
Condominium
Days on Market
133
HOA Fee
$498/mo
Garage Total
2
MLS #
219139120PS
Interior Features
Breakfast Bar, Separate Formal Dining Room, Open Floorplan, Bedroom On Main Level, Main Level Primary, Multiple Primary Suites, Primary Suite, Utility Room, Walk In Closets
Flooring
Carpet, Tile
Appliances
Dishwasher, Gas Cooktop, Disposal, Gas Oven, Microwave, Refrigerator
Laundry
Laundry Room
Cooling
Central Air
Heating
Forced Air, Natural Gas, Zoned
Total Parking Spaces
4
Garage Spaces
2
Attached Garage
Yes
Parking Features
Guest
Patio & Porch
Concrete
Security
Gated Community
Construction
Stucco
Foundation
Slab
Roof
Tile
Pool Features
In Ground
Spa Features
Community, In Ground
Maintenance Grounds, Management
Gated
$0
| Rating | School Name | ||
|---|---|---|---|
| No school data available for this area. | |||
Balanced market
Avg. time on market
This is a Balanced Market. Homes are selling at a moderate pace.
Flood Risk
Minimal — not in a FEMA flood zone
Wildfire Risk
Moderate — near wildland-urban interface
Heat Risk
Low — moderate summer temperatures
Earthquake Risk
Southern California seismic zone
Based on price, location, and features
Topfind Realty, DRE # 02240815, is a licensed real estate broker in California. Topfind Realty pledges to support the Fair Housing Act and adhere to Equal Housing Opportunity laws.
Copyright © 2026 Topfind Realty. All Rights Reserved.