




$179,900
Est. $1,007/mo0 Ave Valdez, Cathedral City, CA 92234
About this home
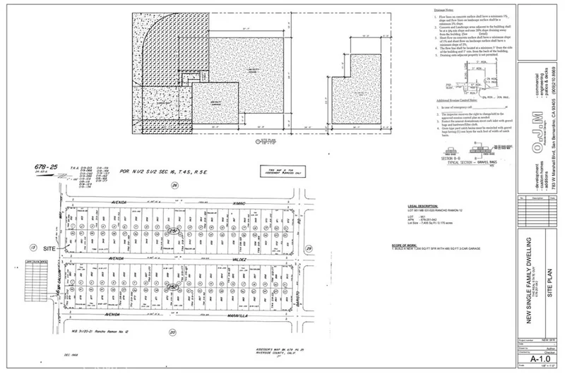
Corner Lot with Custom Home Design Plans with an ADU – Save Over $100K! Build your dream home and enjoy instant savings! This prime corner lot comes with professionally designed architectural plans. This could save you over $100,000 compared to buying from a builder who will also add costly special assessments. Located in a desirable area, this property offers the perfect blend of convenience and potential. The included plans maximize space, style, and functionality, giving you a head start on construction. Whether you’re building for yourself or as an investment, this is a rare opportunity to secure land and a ready-to-build design package in one. Opportunities like this don’t last long—make it yours today!
infoProperty Facts
Lot Size
7,405 sqft
Days on Market
188
HOA Fee
N/A
MLS #
IV25188219
chairInterior Details
garageParking
deckExterior & Lot
Lot & Grounds
Lot Features
Value In Land
Water Source
Public, See Remarks
diversity_3Community & HOA
Association Info
Community Features
Sidewalks
Mortgage Calculator
$0
Nearby Schools
| Rating | School Name |
|---|---|
9 | GreatSchools High (Demo) public School • ratio 22:1 |
7 | Valley View Elementary (Demo) public School • ratio 18:1 |
6 | Lincoln Middle School (Demo) public School • ratio 20:1 |
NR | St. Mary Example Academy (Demo) private School • ratio 12:1 |
Walkability
Market Insights
Estimated Value
Market Temperature
Balanced market
Avg. time on market
This is a Balanced Market. Homes are selling at a moderate pace.
Similar Homes You Might Like
Based on price, location, and features