

Frying Pan Rd Lot 14, Borrego Springs, CA 92004
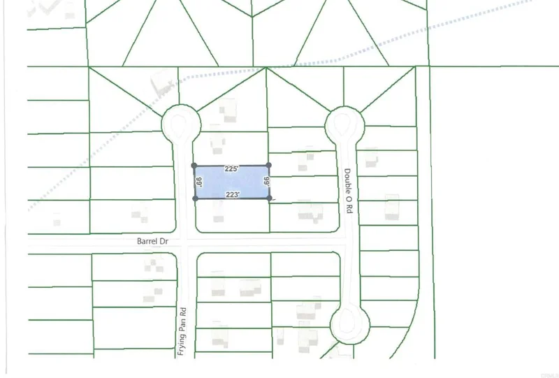
Large 0.51 acre residential lot located on a quiet cul de sac. Great location to build your desert retreat. Beautiful views of the desert and surrounding mountains.
Bathrooms
0
Lot Size
22,215.6 sqft
Days on Market
174
HOA Fee
N/A
MLS #
NDP2509101
Lot Features
Cul De Sac
Rural
$0
| Rating | School Name | ||
|---|---|---|---|
| No school data available for this area. | |||
Balanced market
Avg. time on market
This is a Balanced Market. Homes are selling at a moderate pace.
Flood Risk
Minimal — not in a FEMA flood zone
Wildfire Risk
Moderate — near wildland-urban interface
Heat Risk
Low — moderate summer temperatures
Earthquake Risk
Southern California seismic zone
Based on price, location, and features
Topfind Realty, DRE # 02240815, is a licensed real estate broker in California. Topfind Realty pledges to support the Fair Housing Act and adhere to Equal Housing Opportunity laws.
Copyright © 2026 Topfind Realty. All Rights Reserved.