




$749,900
Est. $4,199/mo0 Lynn Road, Big Bear Lake, CA 92315
About this home
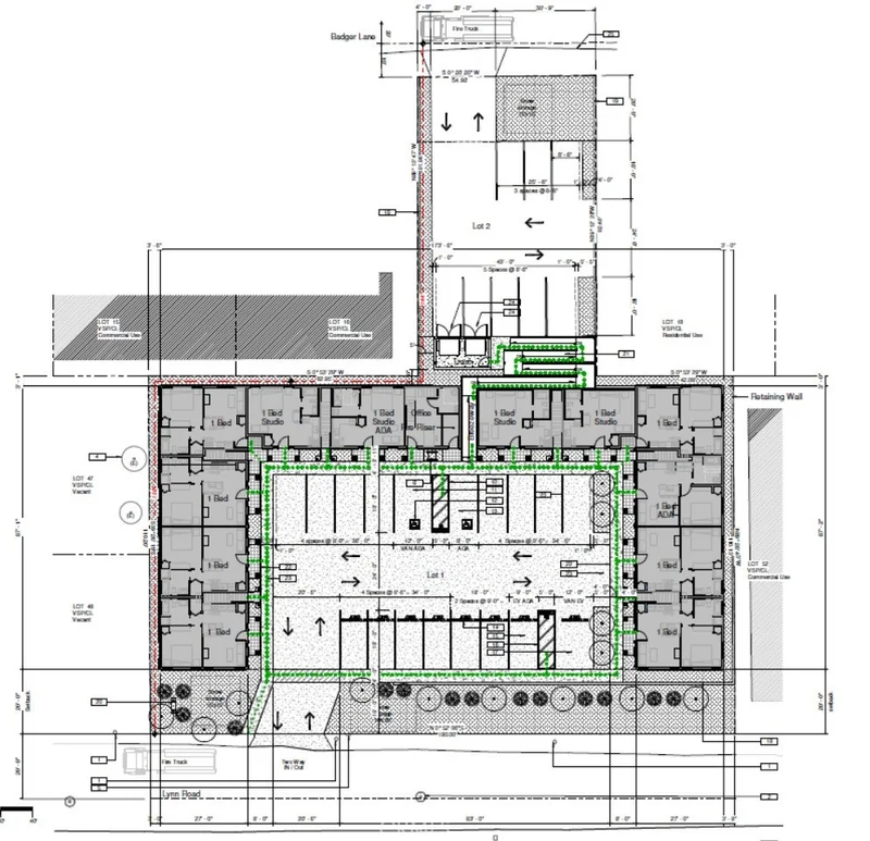
Exceptional development opportunity in Big Bear Lake within the highly desirable Village Specific Plan. This 19,800 sq.ft. commercial land parcel is zoned Commercial Lodging and offers rare flexibility for investors and developers seeking hospitality, residential, or retail potential in the heart of Big Bear Village. The property can be purchased on its own or combined with the adjacent lot at 532 Badger Ln (offered at $549,900) to unlock larger-scale development options. When assembled, preliminary plans are already in place for a 24-unit (16 one bedrooms/8 studios) hotel, as well as alternative plans for a 6-unit condo project, providing multiple viable paths depending on market strategy. The subject parcel alone can accommodate an 11 rental unit hotel + office/storage, with preliminary plans completed, or a 5-unit condo development, offering flexibility for phased or smaller-scale projects. Once built, upper-level and second-story units are anticipated to enjoy lake views, further enhancing long-term value and guest appeal. A perc test was completed in 2023, adding further value and reducing pre-development uncertainty. The location is a major highlight, just steps from the lake and a short walk to Pine Knot Ave, restaurants, shops, and entertainment, making it ideal for lodging, residential, or visitor-serving uses. In addition to hotel and condo development, the Village Specific Plan allows for a variety of other potential uses including residential, retail, restaurants, and related commercial uses, subject to approval. Buyer to conduct all due diligence with the planning commission and applicable agencies regarding permitted uses and development requirements.
infoProperty Facts
Lot Size
19,800 sqft
Days on Market
24
HOA Fee
N/A
MLS #
IG26032209
chairInterior Details
garageParking
deckExterior & Lot
Lot & Grounds
Lot Features
Zero To One Unit Acre, Sloped Down, Near Public Transit, Rectangular Lot
Water Source
Public
diversity_3Community & HOA
Association Info
Community Features
Biking, Fishing, Hiking, Horse Trails, Lake, Mountainous, Near National Forest, Preserve Public Land, Rural, Street Lights, Valley
Mortgage Calculator
$0
Nearby Schools
| Rating | School Name |
|---|---|
9 | GreatSchools High (Demo) public School • ratio 22:1 |
7 | Valley View Elementary (Demo) public School • ratio 18:1 |
6 | Lincoln Middle School (Demo) public School • ratio 20:1 |
NR | St. Mary Example Academy (Demo) private School • ratio 12:1 |
Walkability
Market Insights
Estimated Value
Market Temperature
Balanced market
Avg. time on market
This is a Balanced Market. Homes are selling at a moderate pace.
Similar Homes You Might Like
Based on price, location, and features