




$860,000
Est. $4,816/mo34215 Simla, Acton, CA 93510
About this home
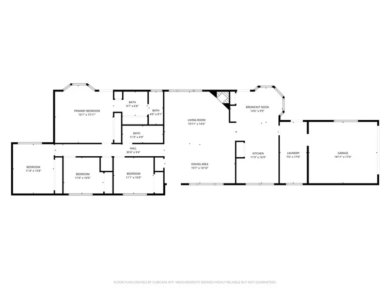
Beautiful 4 beds 2 bath Acton home on over 5 acres with stunning mountain views! Built in 1990, this 2,174 Sq Ft single-story offers an open floor plan, spacious kitchen with updated countertops and freshly painted cabinets, and brand -new carpet from the living room through all bedrooms. Brand new 1,500-gallon septic tank. Enjoy a cozy fireplace, and central heat/AC. Enjoy peace and privacy with room for horses,RV, or expansion. Attached garage, tile roof , and stucco exterior. Country living at its best - close to town and commuter routes!
infoProperty Facts
Bedrooms
4
Bathrooms
2
Square Feet
2,174
Lot Size
230,868 sqft
Year Built
1990
Property Type
Single Family Residence
Days on Market
135
HOA Fee
N/A
Garage Total
2
MLS #
SR25236398
chairInterior Details
General Interior
Interior Features
All Bedrooms Down, Bedroom On Main Level, Main Level Primary
Fireplace
Living Room
Kitchen & Appliances
Laundry
Electric Dryer Hookup, Gas Dryer Hookup, Inside, Laundry Room, Propane Dryer Hookup
Bed & Bath
Main Level Bedrooms
1
Main Level Bathrooms
1
Climate Control
Cooling
Central Air
Heating
Central
garageParking
Total Parking Spaces
2
Garage Spaces
2
Attached Garage
Yes
deckExterior & Lot
Building & Construction
Patio & Porch
Open, Patio
Lot & Grounds
Lot Features
Item25 Units Acre
Sewer
Septic Tank
diversity_3Community & HOA
Association Info
HOA Amenities
Horse Trails, Trails
Community Features
Foothills, Hiking, Horse Trails, Stables, Street Lights
Mortgage Calculator
$0
Nearby Schools
| Rating | School Name |
|---|---|
9 | GreatSchools High (Demo) public School • ratio 22:1 |
7 | Valley View Elementary (Demo) public School • ratio 18:1 |
6 | Lincoln Middle School (Demo) public School • ratio 20:1 |
NR | St. Mary Example Academy (Demo) private School • ratio 12:1 |
Walkability
Market Insights
Estimated Value
Market Temperature
Balanced market
Avg. time on market
This is a Balanced Market. Homes are selling at a moderate pace.
Similar Homes You Might Like
Based on price, location, and features